Savivaldybė: Palangos m. sav.
Vietovė: Palanga
Statybos metai: 2026
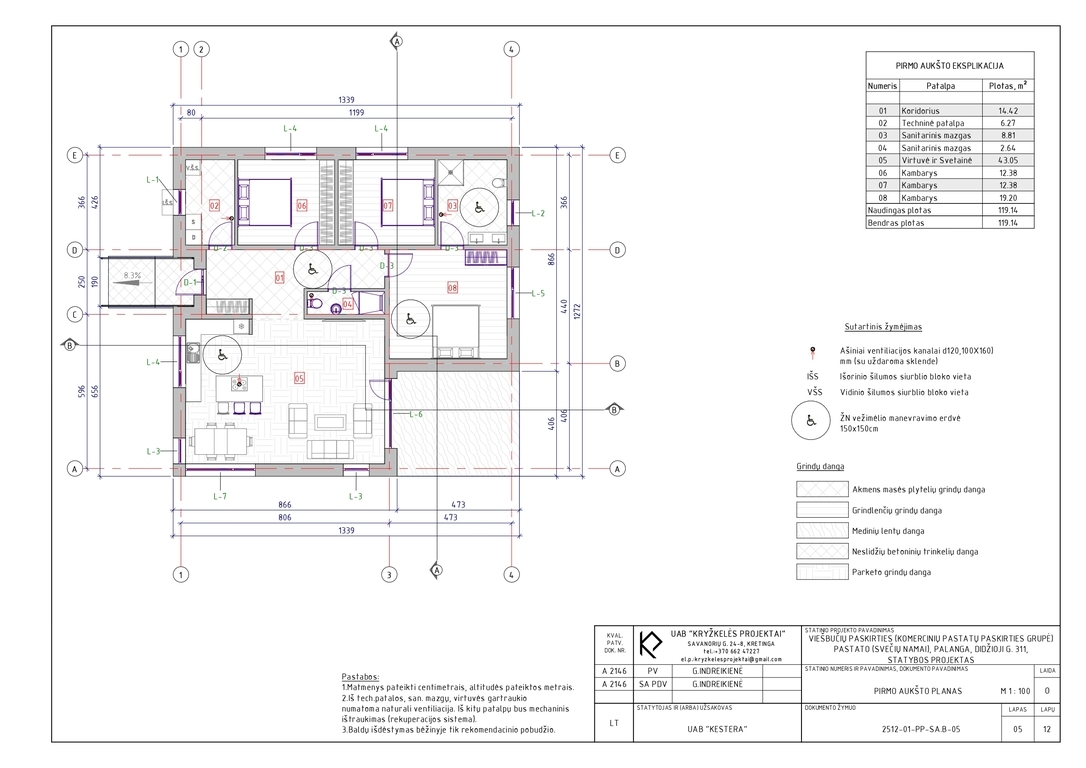
Plotas: 119.14 m2
Aukštų skaičius: 1
Kaina: 265000 €
Įmoka: 1.090€/mėn.
Objekto informacija

PARDUODAMAS PROJEKTAS / NAMAS PALANGOJE – DIDŽIOJI G.

Laba diena, džiaugiuosi, kad renkatės mus.

Palangoje, patrauklioje ir sparčiai besivystančioje vietoje parduodamas **modernus gyvenamosios paskirties namo projektas** su sklypu. Tai puikus pasirinkimas ieškantiems kokybiško būsto pajūryje – tiek nuolatiniam gyvenimui, tiek poilsiui.

---

**BENDRA INFORMACIJA:**

* Adresas: **Palanga, Didžioji g. 311**
* Paskirtis: **keičiama į gyvenamąją**
* Bendras plotas: **119,14 kv. m**
* Aukštų skaičius: **1**
* Energinė klasė: **A++**
* Sklypo plotas: **10 arų
* Terasa: **19,20 kv. m**
* Kiemo aikštelė: **~125 kv. m**

---

### **PROJEKTO PRIVALUMAI:**

* Moderni, šiuolaikiška architektūra
* Funkcionalus vieno aukšto išplanavimas
* Didelis sklypas – daugiau privatumo ir galimybių
* Terasa poilsiui ir laisvalaikiui
* Puikiai tinka tiek gyvenimui, tiek antram būstui prie jūros

---

### **KOMUNIKACIJOS IR INFRASTRUKTŪRA:**

* Visos komunikacijos – **vietinės (vanduo, nuotekos)**
* Paruošta **prisijungimui prie miesto tinklų ateityje**
* Numatytas **asfaltuotas privažiavimas**
* Sutvarkyta ir suplanuota aplinka

---

### **PASKIRTIS IR NAUDOJIMAS:**

Projektas vystomas kaip **gyvenamosios paskirties būstas**, orientuotas į komfortišką gyvenimą.
👉 **Tik gyvenimui skirta** – ne trumpalaikei nuomai.

---

### **STATYBOS SPRENDINIAI IR MEDŽIAGOS:**

Naudojamos kokybiškos, ilgaamžės medžiagos:

* Pamatai – **gręžtiniai / monolitiniai**
* Sienos – **mūrinės (blokeliai)**
* Fasadas – **moderni, ilgaamžė apdaila**
* Stogas – **betoninės čerpės**
* Langai – **plastikiniai, 3 stiklų paketai (aukšta šiluminė varža)**

---

### **KODĖL VERTA RINKTIS:**

Tai puiki galimybė įsigyti **kokybišką, naujos statybos būstą Palangoje**, su galimybe gyventi ramioje aplinkoje ir turėti ilgalaikę investicinę vertę.

---

Dėl detalesnės informacijos, kainos ir apžiūros:
📞 Susisiekite – pateiksiu visus pasiūlymus, taip pat turime ir kitų objektų pajūryje (Palanga, Klaipėda, Latvijos pajūris).

**Gražios dienos ir iki malonaus.**

https://regia.lt/map/regia2?x=319145&y=6202991&scale=2000&identify=true&sluo_ids=22,250,251,72,148,252,270,271,272,273,274,275,276,277,280,281,282,283,284,285,287,288

https://youtube.com/shorts/nSk7wDypuoM?si=61BHjHbBm5J6lG3a

📞 Daugiau informacijos ir apžiūros laikas – susisiekite su NT bičiuliu Romu!
📧 romas@011.lt | ☎ +370 644 44 011
🌐 Daugiau pasiūlymų – www.011.lt

Vieta mieste

Panašūs objektai