Savivaldybė: Kauno m. sav.
Vietovė: Dainava
Statybos metai: 2007
Plotas: 56.00 m2
Aukštas/Aukštų skaičius: 6/9
Kaina: 127500 €
Įmoka: 530€/mėn.
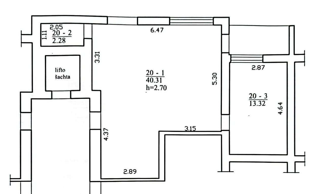
Objekto informacija

Parduodamas 2 k. butas V.Krėvės pr., Dainavoje

• 2007 m. statybos namas
• Išskirtinai patogi Dainavos vieta
• Šeštas aukštas iš devynių

• Bendras plotas 55,91 kv.m.
• Svetainė bendroje erdvėje su virtuve
• Miegamasis
• Erdvus vonios kambarys
• Tamsus kambariukas
• Įstiklintas balkonas

• Butas parduodamas su dalimi baldų
• Langai į rytų pusę
• Ekonomiškas šildymas reguliuojamas kiekviename kambaryje
• Telefonspynė
• Signalizacija
• Tvarkingos bendrosios namo erdvės
• Uždara vaikų žaidimo aikštelė
• Šalimais Dainavos parkas, Kauno kolegija, prekybos centras
• Puikus susisiekimas viešuoju transportu

Vieta mieste

Panašūs objektai