Savivaldybė: Palangos m. sav.
Vietovė: Palanga
Plotas: 47.00 m2
Kaina: 205000 €
Įmoka: 850€/mėn.
Objekto informacija

Monciškėse, uždarame individualių namų kvartale J7, parduodamas šiuolaikiškas, pilnai įrengtas kotedžas.
J7 kvartalas sukurtas žmonėms, vertinantiems privatumą, saugumą ir ramybę, tačiau norintiems išlikti arti Palangos miesto ritmo.

 Adresas: Monciškės g. 26K, Palanga
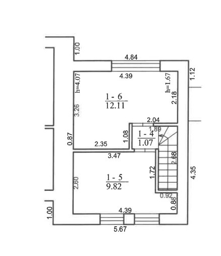
 Plotas: 47 kv. m
 Statybos metai: 2023 m.
 Aukštai: 2
 Kambariai: 3
 Paskirtis: poilsio
 Energinė klasė: A+

Pagrindinė informacija :
• Baigtumas – 100 %,
• Pamatai – gręžtiniai poliai,
• Lauko sienos – klinkeris,
• Perdanga – monolitinė,
• Stogas – šlaitinis,
• Terasa, privatus kiemelis.
• Sutvarkytas gerbūvis, trinkelėmis išklota parkingo aikštelė,
• Įrengtas sandėliukas,
• Šildymas – aeroterminis (oras–oras), el. grindinis šildymas,
• Įrengta rekuperacinė vėdinimo sistema,
• Pirmame aukšte virtuvės zona su svetaine, vonios ir wc patalpa, ūkinė patalpa, antrame aukšte -2 miegamieji kambariai,
• Kiekviename kambaryje kondicionieriai (šildo / vėsina),
• Visi baldai ir buitinė technika (šaldytuvas, viryklė, indaplovė, skalbyklė )
• Nuosavos 2 parkavimo vietos,
KOMUNIKACIJOS : Miesto vandentiekis ir nuotekos, elektra, internetas
PRIVALUMAI :
• Šildomas baseinas, gultai, 2 pirtys, vaikų žaidimo aikštelė,
• Rami kaimynystė,
• Aptverta, uždara teritorija,
• Netoli miško, ramus ir saugus kvartalas,
• Iki jūros 25min. pėsčiomis
• Puikus asfaltuotas privažiavimas, patogus susisiekimas tiek asmeniniu, tiek viešuoju transportu – iki Palangos 10min. kelio

Idelus variantas, kas ieško poilsio namų prie jūros arba investicijos į nuomą!

Kviečiu apžiūrai Jums patogiu metu!
Vaida Skakun
Mob. +37065769011
vaida@011.lt

Vieta mieste

Panašūs objektai